Skip to main content
x
Main navigation
Carleton Place
Home
⟶
St. Pat's Gets the Evil Eye - The Charlatan
Carnegie Library Stained-Glass Window - Distant view
Ottawa Public Library Interior - Main Area
Union Station
Installation of stained glass window
Carnegie Library - Front Facade
Andrew Carnegie
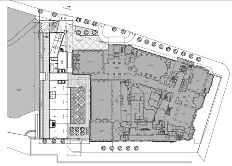
Chateau Laurier Existing Ground Floor Plan (ERA Architects)
Angel's Stairway, Chateau Laurier. ca. 1931
An orchestra plays in the Château Laurier's Jasper room in 1929. (Library and Archives Canada)
Pagination
First page
« First
Previous page
‹ Previous
…
Page
18
Page
19
Page
20
Page
21
Current page
22
Page
23
Page
24
Page
25
Page
26
…
Next page
Next ›
Last page
Last »
Subscribe to
↑