Skip to main content
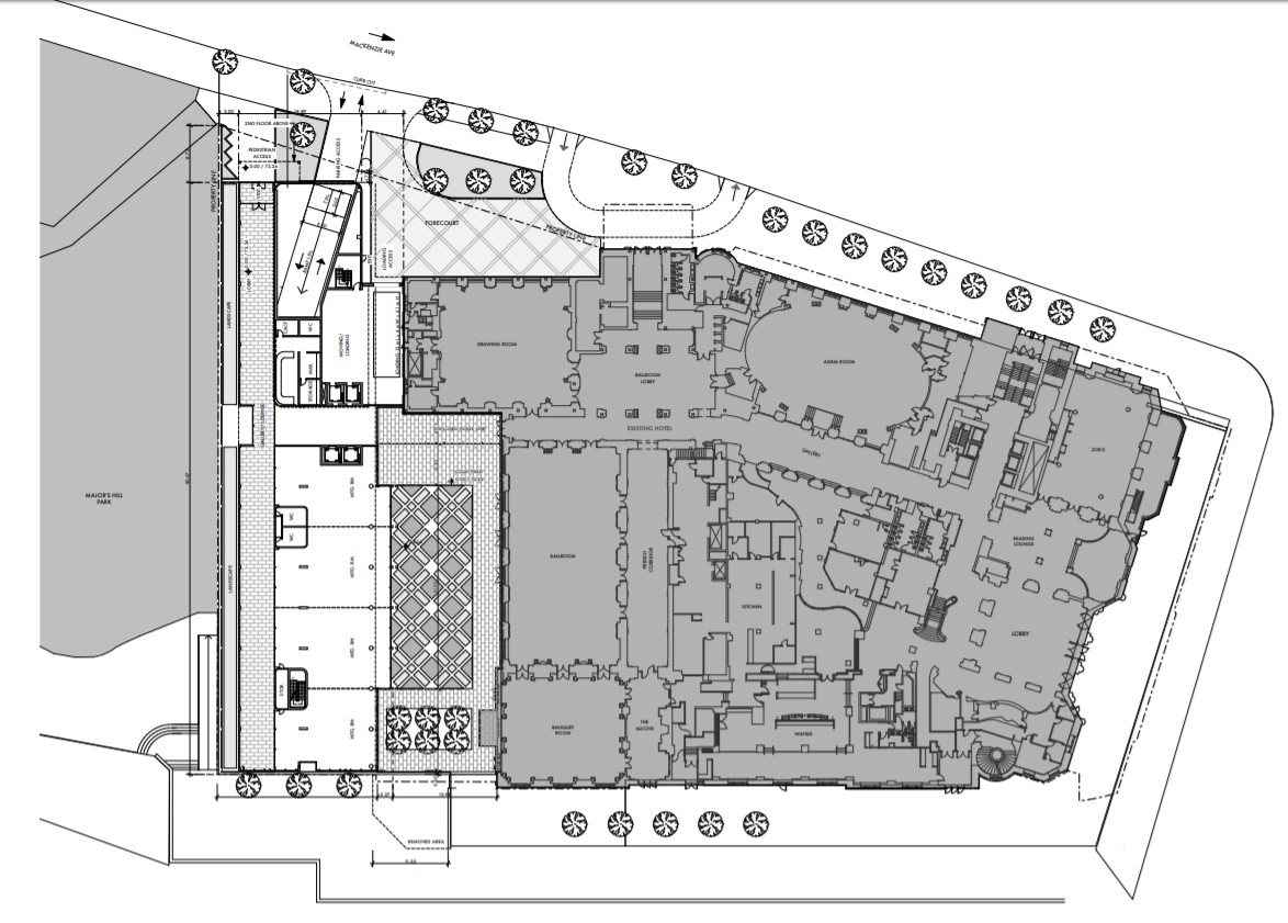
Image
Chateau Laurier Existing Ground Floor Plan (ERA Architects)
Item Date
2018-01-31
Item Source Identifier / File or Archive Number
Cultural heritage impact statement - addendum Château Laurier Proposed Addition
I Created This Item
No
I Grant Permission to CU
No

Item Creators / Authors

Item Source / Archive Name

Building